The Alder Cottage One

  • The Alder Cottage One - Front
    Front
  • The Alder Cottage One - Back
    Back
  • The Alder Cottage One - Main Level
    Main Level
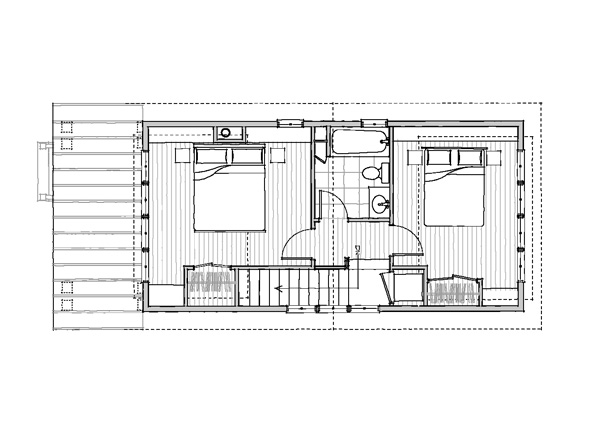
  • The Alder Cottage One - Upper Level
    Upper Level
Your Cart (view)
Items: 0
Price: $0.00

At 16' wide, these small floor plans can fit a new house under 1,000 square feet onto a tiny lot.

This perfect infill house or pocket neighborhood small cottage plan includes a loft option accessible by way of a simple ship's ladder for added storage or play space. This compact starter or empty nester house plan will fit as nicely into a traditional neighborhood development, as it will on a secluded view lot.

Main Level: 512 sq ft
Upper Level: 465 sq ft
Total: 977 sq ft
Covered Porch: 94 sq ft
   
2 Bedrooms
1 ½ Bathrooms
 
Floor Plans & Specifications (PDF)

$1,850

DWG file (+$750)
Design Reuse (+$1,755)
  • 10% OFF 1 additional license.
  • Looking for more licenses? Contact us directly.
  • View Limits of Use for more information.
2026 © Perfect Little House Company Website Design by Paper Tower